聯系我們
咨詢熱線:
13176718765
座機:0536-3729555
郵箱:wfthzg@126.com
地址:山東省臨朐縣東城街道南二環3222號K型往復式給煤機
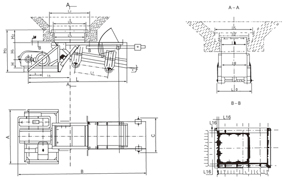
產品概述
概述:
K型往復式給煤機,適用于發電廠煤礦地面生產系統和選煤廠中,將煤炭由上段工藝設備中均勻地給入下段設備中。給煤機主要由機架地板(給煤槽),傳動平臺、漏斗閘門,拖滾等組成,有不帶閘門和帶閘門及進料口、訂貨時說明,如采用防爆電機,訂貨時需注明。
外型尺寸
技術參數
| 型號 | K-0 | K-1 | K-2 | K-3 | K-4 | ||||||||||||||||
| 曲柄轉數(rpm) | 57 | 57 | 57 | 62 | 62 | ||||||||||||||||
| 曲柄位置 | 4 | 3 | 2 | 1 | 4 | 3 | 2 | 1 | 4 | 3 | 2 | 1 | 4 | 3 | 2 | 1 | 4 | 3 | 2 | 1 | |
| 底板行程(mm) | 200 | 150 | 100 | 50 | 200 | 150 | 100 | 50 | 200 | 150 | 100 | 50 | 200 | 150 | 100 | 50 | 240 | 140 | 130 | 50 | |
| 生產能力 |
煙煤(t) 無煙煤(t) |
90 | 67 | 45 | 22 | 135 | 100 | 68 | 31 | 200 | 150 | 100 | 50 | 300 | 210 | 150 | 75 | 530 | 390 | 260 | 130 |
| 100 | 75 | 50 | 25 | 150 | 112 | 75 | 38 | 225 | 170 | 113 | 55 | 330 | 247 | 165 | 83 | 590 | 440 | 290 | 148 | ||
| 電動機 | 型號 |
Y160M1-8 |
Y160M1-8 |
Y160M1-8 |
Y160M1-6 |
Y180L-6 |
|||||||||||||||
| 功率(kw) | 4 | 4 | 4 | 7.5 | 15 | ||||||||||||||||
| 轉速(rpm) | 720 | 720 | 720 | 960 | 970 | ||||||||||||||||
| 減速機 | 型號 | JZQ350 | JZQ350 | JZQ350 | JZQ400 | JZQ500 | |||||||||||||||
| 速比 | 12.63 | 12.63 | 12.63 | 15.75 | 15.75 | ||||||||||||||||
|
最大粒度尺寸 |
最大料度含量10%以下 |
250 | 350 | 400 | 500 | 700 | |||||||||||||||
| 最大料度含量10%以上 | 200 | 300 | 350 | 450 | 550 | ||||||||||||||||
|
重量 |
帶漏斗 | 1150 | 1253 | 1420 | 1940 | 2880 | |||||||||||||||
| 不帶漏斗 | 1080 | 1157 | 1288 | 1830 | 2680 | ||||||||||||||||



